カメラセンサーを駆使してホームセンターをZEBに ロイヤルホームセンター足立鹿浜(前編)
- 20/04/17
- 太陽光発電関連ニュース・市場動向
木材や内装資材、工具といった建設関連のプロ向き商品、日用品や家庭用品、ガーデニング用品などの展示棚が天井の高い店内にずらりと並ぶ。2018年4月にオープンした「ロイヤルホームセンター足立鹿浜」はZEB Readyの大型物販店舗だ。
国が定めるZEB(ネット・ゼロ・エネルギー・ビル)のレベルは性能の高い順にZEB、Nearly ZEB、ZEB Ready、ZEB Orientedという4段階がある。「ロイヤルホームセンター足立鹿浜」(東京・足立)はZEB Ready。太陽光発電などの創エネルギーを含まない1次エネルギー消費量の削減率(その他エネルギーを除く)が50%以上、創エネを含む同削減率が50%以上75%未満の建物を指す。足立鹿浜店は太陽光発電設備を設置していないが、1次ネルギー消費量削減率は66%となった。

ロイヤルホームセンター足立鹿浜の南側外観。敷地の南西側(写真左側)には堤防と高速道路を隔てて荒川が流れる(写真:ロイヤルホームセンター)
同店を運営するのは、大和ハウス工業のグループ企業、ロイヤルホームセンター(大阪市)だ。関西と関東を中心に、ホームセンターや建築関連のプロ向きに特化した「ロイヤルプロ」など約60店舗を展開している。足立鹿浜店はロイヤルホームセンターにとって4番目のZEB店舗。同社がZEBリーディング・オーナーとなる店舗は足立鹿浜店を含め2店あり、2020年夏開店予定の「戸田公園」の店舗を加えると計3店になる。
鉄骨造の地上2階建ての建物は、延べ面積1万2129m2。設計は悠設計(大阪市)、施工はイチケン(東京・港)が担当し、NTTファシリティーズ(東京・港)がZEBプランナーとして参画した。
ZEB化に当たっての大きな特徴は、カメラを用いた設備の制御にある。「これまでの店舗で使ってきた温度センサーに加えて、人の動きを感知するカメラセンサーを導入し、空調、照明、換気をコントロールしている」。ロイヤルホームセンター店舗開発統括部店舗開発部建築設備グループの藤井孝章氏はそう話す。
従来店舗でも使用している温度センサーは、床から約4mの高さにある天井面ではなく、店内に点在する柱の側面に2m程度の高さで取り付けている。できるだけ来店者の感覚に近い状態で室温を検知して制御するための工夫だ。
足立鹿浜店では、さらに2種類のカメラセンサーを新しく導入した。

1階の売り場。天井の要所に配置したカメラセンサーで通路まわりのエリアに人がいるかどうかを判断し、空調と照明を制御している(写真:守山 久子)
このうち換気用のカメラセンサーは、1階と2階の売り場への出入り口部分の天井に設置した。各出入り口を通過した人数をカウントして売り場に滞在する人数を割り出し、店内の換気量を調整する。
もう1種類のカメラは空調と照明を制御するもので、売り場を縦横に走っている通路の端部の天井面に取り付けた。1階に63個、2階に24個のカメラがある。通路まわりを行き来する来店者の動きを捉え、そのエリア内に人が入ると空調を入れ、照明の照度を上げる。
「照明の場合、従来は消灯、50%の間引き点灯、100%点灯のように設定してきた。それに対してこの店では全ての照明を点灯しつつ、人がいるときに100だった照度を人がいなくなると70程度に絞る。天井をよく見ていると『やや暗くなった』と気付く程度の調整になる」(藤井氏)
「照明は営業時間中ずっと稼働する。空調も同様なので、これらの消費エネルギーを低減するのは効果的だ。以前は余計な電気を一つ一つ人の手で消していたが、ただでさえ人手不足になりがちな店舗でマンパワーに頼るのは限界がある。機械的に調整することで、店舗スタッフに負担をかけずに無駄を省き、環境性能を高めていける」と藤井氏は語る。
照明の照度調整は、開店時間が異なるゾーンへの対応にも活用している。プロ向けの売り場は早朝の6時半から開店するのに対し、一般向けの売り場の開店時間は9時。一般売り場の開店時間までは入り口やレジを限定して営業する。その際にプロ売り場は照度を70~100%にするが、一般売り場は30%程度に絞っている。店舗は空間が一体となっているものの、営業前の一般売り場を暗くすることで、来店者が入りにくくなる効果を狙った。
屋上緑化で日射熱を緩和
建築設計の工夫はどうだろうか。
2階建ての建物は南面にほぼ正対するようL字形に配置し、2階の東側を駐車場に利用している。客の出入り口は南面に設け、搬入口を兼ねた倉庫は北・西側に集約した。西南側に位置する道路からのアプローチや来客動線を勘案しつつ、東西からの日射をできるだけ抑える配置計画だ。
「ホームセンターの店舗は開口の数が限られる。外周部分のほとんどが壁で覆われているので、他の用途の建物に比べて開口の影響を受けにくい」(藤井氏)のがメリットだ。
外壁と屋根には厚さ100mmのグラスウール断熱材を施し、窓まわりにはLow-E複層ガラスを用いた。藤井氏は「ZEBとならない店舗に比べると断熱材はほぼ同等で、ガラスの仕様を高めた程度だ」と説明する。

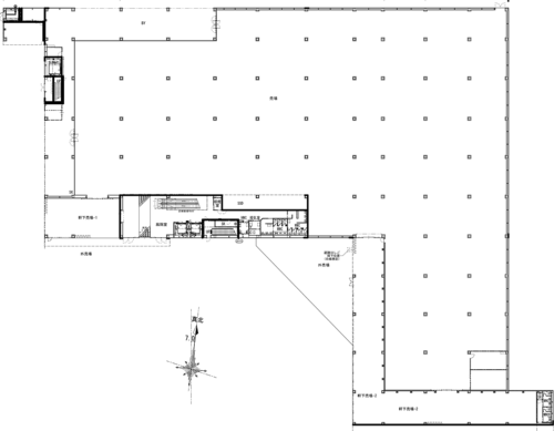
1階平面図(資料:悠設計)

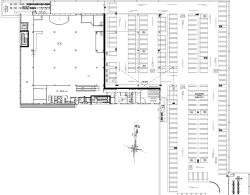
2階平面図(資料:悠設計)
一方で、溶融アルミ亜鉛合金めっき鋼板を用いた折板屋根は面積が広いため、大きな日射熱を取得することになる。ここでは前述した厚さ100mmのグラスウール断熱に加え、2階店舗の屋根の過半に屋上緑化を施して熱負荷の軽減を図った。ZEB化していない既存の店舗に比べ、夏場の暑さに対する苦情は減っているという。

2階店舗部分に施した屋上緑化(写真:ロイヤルホームセンター)
もう一つ、藤井氏がZEB化の効果を指摘するのは木材売り場の温熱環境だ。「木材の収縮を避けるために、基本的に木材売り場には空調を入れないようにしたい。その点、ZEB化した店舗では空調を効かせていないエリアでも室内の快適性を保てるし、木材も反りにくい」というメリットが生まれている。
ロイヤルホームセンター足立鹿浜の建築概要データ
所在地:東京都足立区
地域区分:6地域
建物用途:物販店舗等
構造・階数:鉄骨造・地上2階建て
延べ面積:1万2129m2
発注者:ロイヤルホームセンター
設計者:悠設計
施工者:イチケン東京支店
完成:2018年4月
(日経クロステック「省エネNext」公開のウェブ記事から抜粋)
これからの時代は企業として省エネ、創エネ、畜エネへの取り組みが求められます。グローバルのトップ企業トリナ・ソーラーの高品質で高パフォーマンスの製品の中から最適なパネルをお選びください。





